Aging-in-Place Whole Home Remodel in Corvallis, Oregon
Summary
When the Irvine’s chose to remodel their home, they focused on transforming it into a more functional, cohesive, and future-ready space. This whole home remodel included the primary suite, guest bedroom, hall bathroom, hallway layout, and supporting systems throughout.
Walls were removed, bathrooms were relocated and rebuilt, closets were redesigned, and finishes were replaced from floor to ceiling. The result is a thoughtfully reconfigured private wing that feels connected, comfortable, and built for long-term livability.


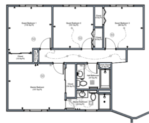
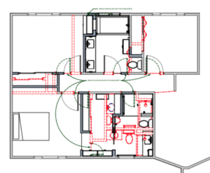
Existing (above) vs. Updated (below) Floor Plan

Client Needs
The Irvine’s primary bathroom and hall bathroom were outdated and required a full remodel. The layout between bedrooms and bathrooms felt inefficient, and storage solutions were limited.
They wanted:
- A reimagined primary suite with improved accessibility for aging-in-place
- A relocated and fully redesigned hall bathroom
- A more functional guest bedroom and an office
- Improved hallway flow and spatial organization
- Updated finishes and storage throughout the space
The hallway was shortened to improve overall layout efficiency, and interior walls between bedrooms and bathrooms were removed and reframed to support a completely new floor plan. This was a structural reconfiguration designed to create better flow and comfort for aging-in-place.
Solution
To solve the pain points that our clients felt and to help them better prepare for the future, we addressed structure, layout, mechanical systems, and finish details throughout.
Primary Suite Remodel
The primary suite was completely transformed.
Key upgrades included:
- A new curbless tile shower
- Heated tile flooring
- A new hickory vanity with plenty of storage
- Strategically placed grab bars
Within the primary closet, we installed custom hickory cabinetry and a lighted closet system. These improvements elevated both storage capacity and daily functionality.
Hall Bathroom Remodel
The hall bathroom was relocated across the hall from its original location and fully redesigned.
Updates included:
- New alcove bathtub
- Heated tile floor for comfort
- Double vanity
- Linen cabinet for added storage
- Grab bars for aging-in-place
The relocation improved flow within the hallway and created better separation between private and shared spaces.
Guest Bedroom, Office, & Hallway Updates
Throughout the bedrooms and hallway, we:
- Installed new carpet
- Added new doors, baseboards, etc.
- Painted walls and ceilings across the entire space
The hallway itself was reconfigured to support the new bathroom placement and overall circulation, creating a more spacious layout.
Systems & Infrastructure Improvements
Because this was a whole home remodel of multiple connected spaces, we also addressed key systems and infrastructure:
- Updated electrical layout with new lighting, outlets, and USB-integrated vanity receptacles
- New plumbing
- Relocated HVAC vents and improved ventilation
- Sound dampening insulation to create a quieter space
These upgrades ensure that what is behind the walls performs as well as what is visible on the surface.




Results
The Irvine home is now updated for aging-in-place and comfort. It offers improved accessibility while supporting long-term needs. Bedrooms and bathrooms are refreshed and organized, and the reworked hallway improves overall flow.
This whole home remodel was about creating alignment between layout, comfort, and longevity for aging-in-place. Every space works together and every detail supports daily life.
For the Irvine’s, the transformation provides renewed confidence in the home they plan to enjoy for years to come.
Inspired by this whole home remodel?
Contact us to start planning your own home remodel in Corvallis, Philomath, or Albany, Oregon.


















