Coastal Contemporary Kitchen Remodel in Corvallis, Oregon
Summary
This Corvallis kitchen remodel transformed a cramped, storage-limited space into a bright and airy kitchen. By removing layout constraints, replacing a bulky island with a better-fitting peninsula, and layering in custom cabinetry, quartz surfaces, and coastal-inspired finishes, we helped our clients create a kitchen that feels more enjoyable to live in every day. The result is a fresh, thoughtfully designed space that better supports how they use their home and complements the style they were drawn to from the start.


Client Needs
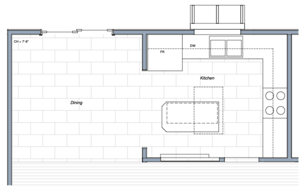
Our clients came to us ready to rethink a kitchen that no longer worked well for them. The existing space felt cramped, lacked the storage they needed, and included an oversized island that took up too much of the available square footage. Instead of helping the room function better, it made the kitchen feel tighter and less efficient.
They wanted a space that felt more open and airy, with a layout that made better use of the footprint they already had. They were also looking for a design that felt fresh and intentional, with finishes and details that tied beautifully into the statement lighting over the dining table. Their goal was a kitchen that not only looked better, but also felt easier and more enjoyable to use every day.
Solution
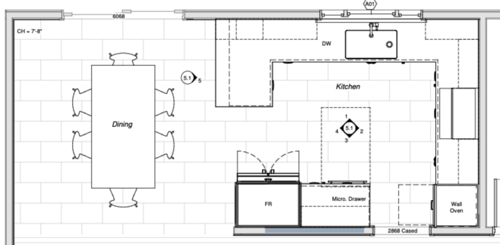
To create a more open and functional layout, we removed the wall separating the kitchen and dining room, widened the kitchen pass-through, and reworked the overall floor plan to improve flow and make the space feel less confined. We also removed the existing garden window and framed in a new kitchen window, helping bring in a cleaner, brighter look at the sink wall.
The new kitchen was built around custom face-frame shaker cabinetry with soft-close drawers and doors, giving the space a timeless foundation while adding significantly more usable storage. We incorporated thoughtful cabinet features throughout, including pull-outs, drawer storage, adjustable shelving, and dedicated zones for everyday function. The oversized island was replaced with a better-scaled peninsula, which opened up the room while still providing valuable workspace and storage.
To complete the look, we installed quartz countertops, a quartz window sill, a full-height tile backsplash, and new large-format tile flooring through the kitchen and dining area. The bold backsplash color and finish selections were chosen to complement the dining light fixture and bring a playful coastal personality into the space without sacrificing timelessness.
We also updated the kitchen’s lighting and functionality with a new recessed lighting plan, undercabinet lighting, a reconfigured appliance layout, and relocated plumbing and electrical to support the new design. Altogether, the remodel created a kitchen that feels lighter, more efficient, and much better suited to the home.
BEFORE

DEMO PLAN

AFTER


Results
The finished kitchen feels dramatically more open, organized, and inviting. By removing visual and physical barriers, improving storage, and right-sizing the layout, the clients gained a space that feels easier to move through and more enjoyable to spend time in. What was once cramped and limiting is now bright, cohesive, and tailored to how they wanted the room to feel.
Just as importantly, the remodel experience reinforced their confidence in the process.
The result is a kitchen that not only looks beautiful, but also feels better to live in – a space designed to function well, reflect their style, and support everyday life with more ease.
As the homeowner shared:
“It was a pleasure to work with Thayer Design Build to give me my dream kitchen. The project manager was very organized and gave us a daily text letting us know what to expect each day. We were also given a printout of the project’s timeline. All the people who came into our home were friendly and professional. The job site was left clean every evening. The project manager was a perfectionist and added many personal touches that elevated my kitchen to the highest level. The project was completed on time and on budget. I would not hesitate to hire Thayer Design Build for any future projects.”
Inspired by this kitchen remodel?
Contact us to start planning your own dream kitchen remodel in the mid-Willamette Valley.



























